
Das Haus mit Flachdach vereint klare Architektur mit durchdachter Funktionalität und schafft so ein Wohnkonzept, das zeitlos und zugleich zukunftsorientiert ist. Die reduzierte, geradlinige Formensprache wird durch das Flachdach konsequent unterstrichen und verleiht dem Gebäude seine moderne, markante Ausstrahlung. Großzügige Fensterflächen und ein offenes Raumkonzept ermöglichen fließende Übergänge zwischen den einzelnen Wohnbereichen.
Im Inneren überzeugt das Haus durch lichtdurchflutete Räume und eine reduzierte, aber hochwertige Gestaltung. Jeder Bereich ist optimal aufeinander abgestimmt und folgt einem klaren Prinzip: maximale Funktion bei minimalistischem Design. Wohnen, Kochen und Essen gehen harmonisch ineinander über und bilden den zentralen Lebensmittelpunkt.
Die Architektur des Hauses mit Flachdach lebt von Klarheit, Struktur und einem konsequenten Verzicht auf überflüssige Details. Die kubische Bauweise, präzise Linien und das charakteristische Flachdach verleihen dem Gebäude seine ruhige, zugleich kraftvolle Ausstrahlung. Klare Proportionen und eine reduzierte Formensprache sorgen für ein harmonisches Gesamtbild, in dem jedes Element einer eindeutigen Funktion folgt.
Im Inneren entsteht ein besonderes Raumgefühl durch Offenheit und Weite. Großzügige Grundrisse und fließende Übergänge schaffen ein Wohnkonzept ohne starre Grenzen. Räume wirken nicht getrennt, sondern miteinander verbunden – dadurch entsteht eine natürliche Leichtigkeit im gesamten Haus.

Raumprogramm
offene Küche, offener Essbereich, große Diele, ein Bad, Ankleide, Garderobe, Flur, 5 Zimmer, Gästezimmer, 1 WC
Abmessungen (Länge * Breite)
12,99 m x 18,61 m
Flächen
ca. 239 m²
Anzahl Vollgeschosse
2 in allen Bundesländern
Dachform
Flachdach
Dachneigung
0°
Drempel/Kniestock
0,0 m
Bauweise & Preis
Poroton-Ziegel: energieeffiziente Ziegelbauweise und massiver Stahlbeton. Geschosshöhe im Rohbau 2,75 m, versteckte Dachentwässerung, Holzfassade
Massivhaus Bauhaus ca. 239 qm Nfl.: Preis auf Anfrage
*je nach Region können zusätzliche Kosten entstehen
Erfahren Sie mehr: Massiv bauen mit Meisterwerk Unikathaus GmbH.




UNSERE KUNDEN
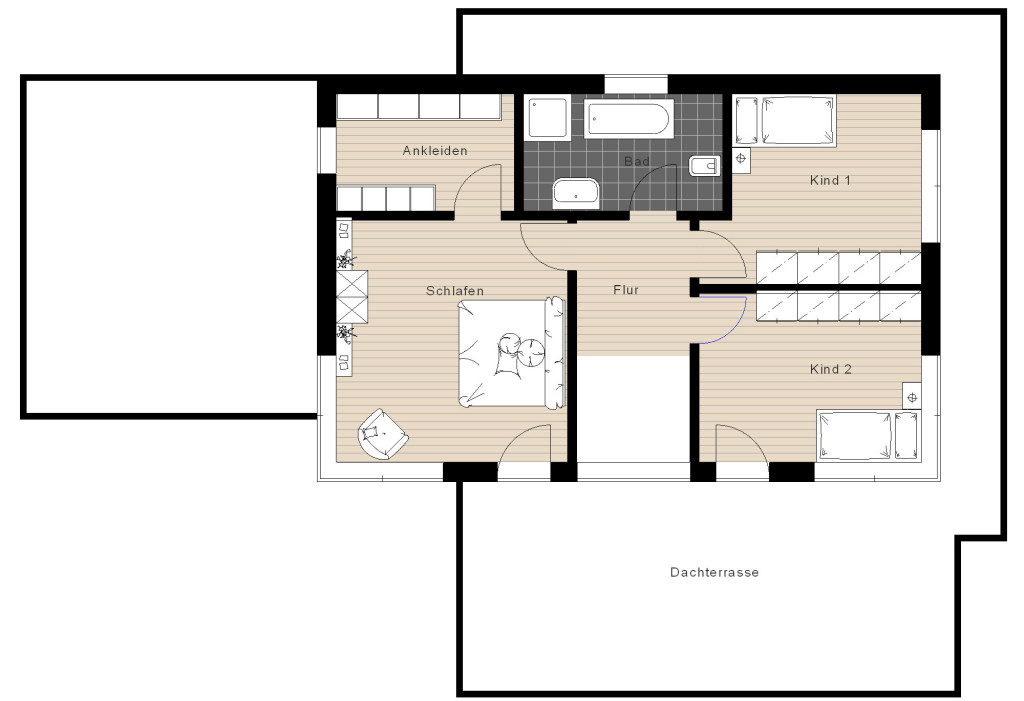
Grundriss
Erdgeschoss
Obergeschoss


WIE GEHT ES WEITER
Ein echtes Gespräch, kein Katalog.
Wir prüfen, ob Ihr Flachdach - Projekt passt – und gehen es dann konsequent an.
Weitere architektonische Unikate aus unserem Haus:
Stadtvilla – klassisch und modern zugleich
Ein Entwurf mit klarer Symmetrie und zeitloser Eleganz.
Bauhaus-Architektur – minimalistisch & markant
Klare Linien, viel Licht, moderne Offenheit.
🡆 Zur Übersicht aller Hausideen
Kontakt
Klingholz Str. 7
65189 Wiesbaden
+49 6436 941 742
info@massivhaus-unikate.de
Geöffnet: Mo-Fr
09:00 bis 16:00