
Die Architektur lebt von klaren Linien, großen Glasflächen und einer leicht versetzten Gebäudestruktur, die dem Haus eine dynamische, moderne Ausstrahlung gibt. Durch die versetzten Baukörper entstehen spannende Blickachsen und natürlich gegliederte Wohnzonen.
Das Raumgefühl ist offen, hell und weitläufig: Die großzügigen Fensterfronten holen viel Tageslicht ins Innere und schaffen ein intensives Gefühl von Transparenz und Verbindung zur Umgebung. Der Keller bietet zusätzliche Nutzfläche für Technik, Fitness, Hobby oder Wellness und erweitert das Raumkonzept funktional, ohne die klare, elegante Architektur des Hauses zu stören.

Raumprogramm
7 Zimmer, offene Küche, Diele, Bad, Dusche, Ankleide, Hauswirtschaftsraum, Keller
Abmessungen (Länge * Breite)
19,02 m x 10,24 m
Nutzflächen
ca. 302 m²
Anzahl Vollgeschosse
2 in allen Bundesländern
Dachform
Pultdach
Dachneigung
7° / 2 Pultdächer
Drempel/Kniestock
0 m
Bauweise & Preis
Poroton-Ziegel: energieeffiziente Ziegelbauweise und massiver Stahlbeton. Geschosshöhe im Rohbau 2,75 m
Massivhaus Pultdach ca. 302 qm Nfl.: >> Richtpreisangebot anfordern.
*je nach Region können zusätzliche Kosten entstehen
Erfahren Sie mehr: Massiv bauen mit Meisterwerk Unikathaus GmbH.




UNSERE KUNDEN
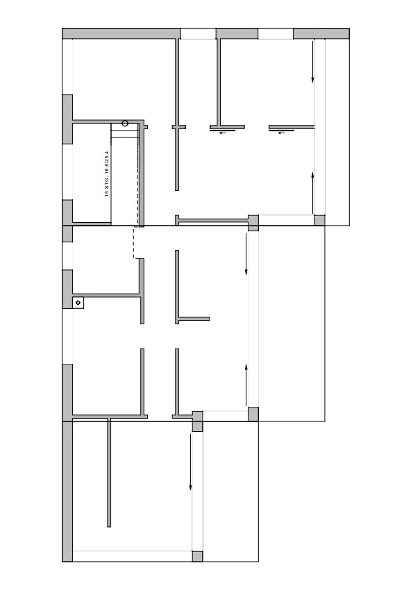
Grundriss
Erdgeschoss
Obergeschoss


WIE GEHT ES WEITER
Lassen Sie uns gemeinsam über Ihr individuelles Massivhaus-Projekt sprechen.
Wir beraten Sie persönlich und unverbindlich – jetzt Kontakt aufnehmen!
Weitere architektonische Unikate aus unserem Haus:
🡆 Stadtvilla – klassisch und modern zugleich
Ein Entwurf mit klarer Symmetrie und zeitloser Eleganz.
🡆 Bauhaus-Architektur – minimalistisch & markant
Klare Linien, viel Licht, moderne Offenheit.
🡆 Zur Übersicht aller Hausideen
Kontakt
Klingholz Str. 7
65189 Wiesbaden
+49 6436 941 742
info@massivhaus-unikate.de
| Cookie | Dauer | Beschreibung |
|---|---|---|
| cookielawinfo-checkbox-analytics | 11 months | This cookie is set by GDPR Cookie Consent plugin. The cookie is used to store the user consent for the cookies in the category "Analytics". |
| cookielawinfo-checkbox-functional | 11 months | The cookie is set by GDPR cookie consent to record the user consent for the cookies in the category "Functional". |
| cookielawinfo-checkbox-necessary | 11 months | This cookie is set by GDPR Cookie Consent plugin. The cookies is used to store the user consent for the cookies in the category "Necessary". |
| cookielawinfo-checkbox-others | 11 months | This cookie is set by GDPR Cookie Consent plugin. The cookie is used to store the user consent for the cookies in the category "Other. |
| cookielawinfo-checkbox-performance | 11 months | This cookie is set by GDPR Cookie Consent plugin. The cookie is used to store the user consent for the cookies in the category "Performance". |
| viewed_cookie_policy | 11 months | The cookie is set by the GDPR Cookie Consent plugin and is used to store whether or not user has consented to the use of cookies. It does not store any personal data. |