
Klare Linien, durchdachte Grundrisse und ein stimmiges Raumgefühl prägen dieses Haus.
Großzügige Wohn- und Aufenthaltsbereiche schaffen Offenheit, während private Räume bewusst getrennt angeordnet sind.
Die Einliegerwohnung ist als vollwertige, eigenständige Wohneinheit geplant – mit separatem Zugang und klarer Trennung.
Eine große Doppelgarage mit direktem Hauszugang ergänzt das Konzept um Komfort und Alltagstauglichkeit.

Raumprogramm
11 Zimmer, offene Küchen, Dielen, Bäder, Duschen, Ankleide
Abmessungen (Länge * Breite)
11,115 m x 9,115 m
Nutzflächen
ca. 287,65 m²
Anzahl Vollgeschosse
2 in allen Bundesländern
Dachform
Satteldach
Dachneigung
38°
Drempel/Kniestock
1,20 m
Bauweise & Preis
Poroton-Ziegel: energieeffiziente Ziegelbauweise und massiver Stahlbeton.
Einfamilienhaus mit Einliegerwohnung ca. 287,65 qm Nfl.:
>> Richtpreisangebot anfordern.
*je nach Region können zusätzliche Kosten entstehen
Erfahren Sie mehr: Massiv bauen mit Meisterwerk Unikathaus GmbH.




UNSERE KUNDEN
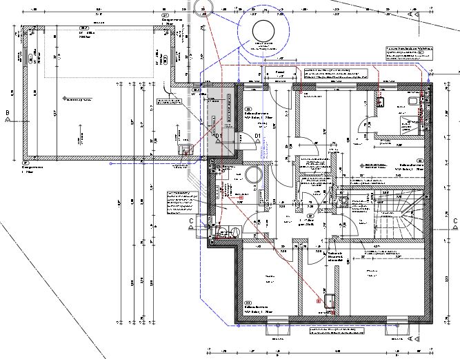
Grundriss
Kellergeschoss
Erdgeschoss
Obergeschoss



WIE GEHT ES WEITER
Ein echtes Gespräch, kein Katalog.
Wir prüfen, ob Ihr Projekt passt – und gehen es dann konsequent an.
Weitere architektonische Unikate aus unserem Haus:
Stadtvilla – klassisch und modern zugleich
Ein Entwurf mit klarer Symmetrie und zeitloser Eleganz.
Bauhaus-Architektur – minimalistisch & markant
Klare Linien, viel Licht, moderne Offenheit.
🡆 Zur Übersicht aller Hausideen
Kontakt
Klingholz Str. 7
65189 Wiesbaden
+49 6436 941 742
info@massivhaus-unikate.de
Geöffnet: Mo-Fr
09:00 bis 16:00
| Cookie | Dauer | Beschreibung |
|---|---|---|
| cookielawinfo-checkbox-analytics | 11 months | This cookie is set by GDPR Cookie Consent plugin. The cookie is used to store the user consent for the cookies in the category "Analytics". |
| cookielawinfo-checkbox-functional | 11 months | The cookie is set by GDPR cookie consent to record the user consent for the cookies in the category "Functional". |
| cookielawinfo-checkbox-necessary | 11 months | This cookie is set by GDPR Cookie Consent plugin. The cookies is used to store the user consent for the cookies in the category "Necessary". |
| cookielawinfo-checkbox-others | 11 months | This cookie is set by GDPR Cookie Consent plugin. The cookie is used to store the user consent for the cookies in the category "Other. |
| cookielawinfo-checkbox-performance | 11 months | This cookie is set by GDPR Cookie Consent plugin. The cookie is used to store the user consent for the cookies in the category "Performance". |
| viewed_cookie_policy | 11 months | The cookie is set by the GDPR Cookie Consent plugin and is used to store whether or not user has consented to the use of cookies. It does not store any personal data. |