
Dieses Satteldachhaus verbindet klassische Architektur mit modernem Wohnkomfort und schafft ein Zuhause, das sowohl funktional als auch stilvoll überzeugt. Durchdachte Grundrisse, großzügige Raumaufteilungen und helle, offene Bereiche bieten viel Platz für individuelles Leben und persönliche Entfaltung.
Besonders hervorzuheben sind die hochwertigen Details, die dieses Massivhaus zu etwas Besonderem machen: Ein Balkon mit elegantem Glasgeländer erweitert den Wohnraum nach außen und bietet einen geschützten Rückzugsort. Großzügige Glasflächen sowie moderne Schiebeelemente im Wohnbereich sorgen für lichtdurchflutete Räume und schaffen eine fließende Verbindung zwischen Innen- und Außenbereich.
Das prägende Satteldach verleiht dem Haus nicht nur seinen charakteristischen Look, sondern sorgt auch für eine angenehme Raumwirkung im Inneren. Klare Linien, ausgewogene Proportionen und natürliche Materialien wie Holz unterstreichen die warme und einladende Ausstrahlung.
Große Fensterflächen lassen viel Tageslicht ins Haus und verstärken das Gefühl von Helligkeit und Weite. Gleichzeitig entsteht durch die klare Struktur eine angenehme Orientierung im Raum. Das Ergebnis ist ein Wohnkonzept, das klassische Architektur mit modernem Lebensgefühl verbindet – hell, harmonisch und komfortabel.

Raumprogramm
offene Küche, offener Essbereich, große Diele, ein Bad, Ankleide, Garderobe, Flur, 4 Zimmer, Gästezimmer, 1 WC
Abmessungen (Länge * Breite)
12,24 m x 10,24 m
Flächen
ca. 189 m²
Anzahl Vollgeschosse
2 in allen Bundesländern
Dachform
Satteldach
Dachneigung
30°
Drempel/Kniestock
0,75 m
Bauweise & Preis
Poroton-Ziegel: energieeffiziente Ziegelbauweise und massiver Stahlbeton. Geschosshöhe im Rohbau 2,75 m
Massivhaus Satteldach ca. 189 qm Nfl.: Preis auf Anfrage
*je nach Region können zusätzliche Kosten entstehen
Erfahren Sie mehr: Massiv bauen mit Meisterwerk Unikathaus GmbH.




UNSERE KUNDEN
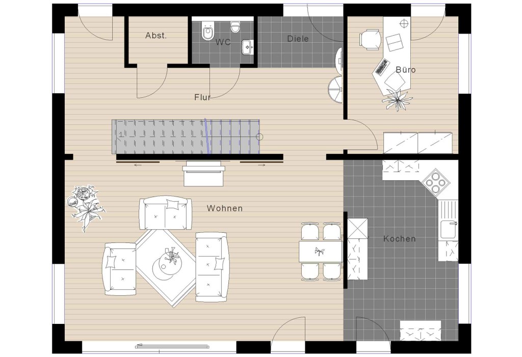
Grundriss
Erdgeschoss
Dachgeschoss


WIE GEHT ES WEITER
Ein echtes Gespräch, kein Katalog.
Wir prüfen, ob Ihr Satteldach- Projekt passt – und gehen es dann konsequent an.
Weitere architektonische Unikate aus unserem Haus:
Stadtvilla – klassisch und modern zugleich
Ein Entwurf mit klarer Symmetrie und zeitloser Eleganz.
Bauhaus-Architektur – minimalistisch & markant
Klare Linien, viel Licht, moderne Offenheit.
🡆 Zur Übersicht aller Hausideen
Kontakt
Klingholz Str. 7
65189 Wiesbaden
+49 6436 941 742
info@massivhaus-unikate.de
Geöffnet: Mo-Fr
09:00 bis 16:00